32
$580,000 Sale
Listed 20 hours ago
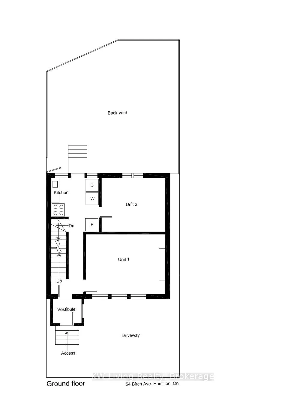
54 Birch Avenue
· 3
· 2
· 1
· 1100-1500
Listing History
Buy/Sell/Terminated/Expired listing history for 54 Birch Avenue
Key Facts
Key facts for 54 Birch Avenue
Property Type
House, 2-Storey
Parking
None 1 garage, 1 parking
MLS #
X12473493
Size
1100-1500 sqft
Basement
Finished,Separate Entrance
Listed on
2025-10-20
Lot size
24 x 70.5
Tax
$4,245.13 /yr
Days on Market
3
Approximate Age
51-99
Maintenance Fee
-
Description
ATTENTION,INVESTORS AND RENOVATORS! Passive Income Opportunity - Turnkey Rental. Exceptional investment opportunity. Rental income $5,700/month + coin laundry $200/month. Potentially convert into a Triplex Property. Detached house with 5 bedrooms, family Room on 3rd Floor, large backyard and & basem...ent apartment with separate entrance. Property sold as is. Renovation & property management services available by seller upon agreement.
Similar Properties (No results)
Courtesy of: KW Living Realty